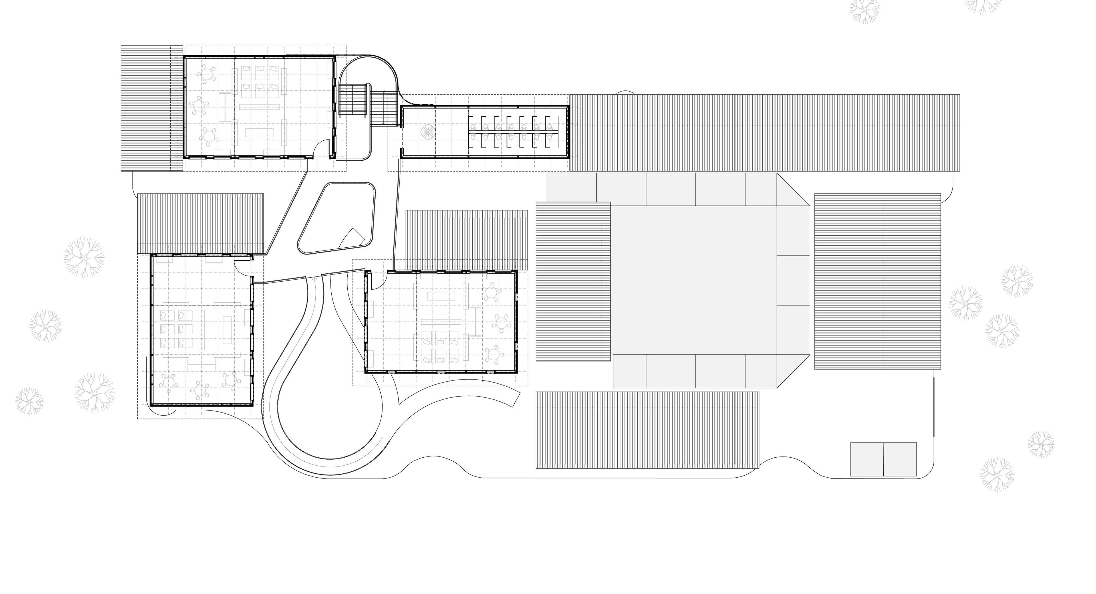
Le projet s’inscrit dans un camp de réfugiés créé en urgence en 2012, et qui s’est depuis relativement pérennisé. Il concilie donc temporaire et durabilité. Le site est multifonctionnel, accueillant un programme éducatif à l’Ouest, et des espaces utilisables par le voisinage en dehors des heures d’écolage, du côté Est.
Le projet se démarque par sa répartition sur deux niveaux, privilégiant les espaces ouverts à l’usage des enfants. Le caractère enfantin est souligné par la disposition des programmes, évitant les symétries et les alignements de bâtiments, ainsi que par la présence de couleurs et d’éléments de jeux. Les circulations deviennent ainsi des aires d’amusement, la structure délimite des zones appropriables.
Le système constructif s’inspire des caravanes habituellement rencontrées dans le camp, reprenant l’utilisation des panneaux sandwich, adaptés cependant à une structure simple et auto-constructible. Un système poteaux-poutres soudé sur place structure l’ensemble des bâtiments avec légèreté. Ce projet est ainsi un levier social avec une identité démarquée du reste du camp. Il promeut un sentiment d’appartenance et d’appropriation, et propose une qualité de vie inédite dans ce contexte.
Collaboration : Hania Sharafeldin

Entrée de l'école

Place commune

Cour centrale

Rez

1er étage

Axonométrie générale

Axonométrie structurelle

Voir aussi

Back to Top