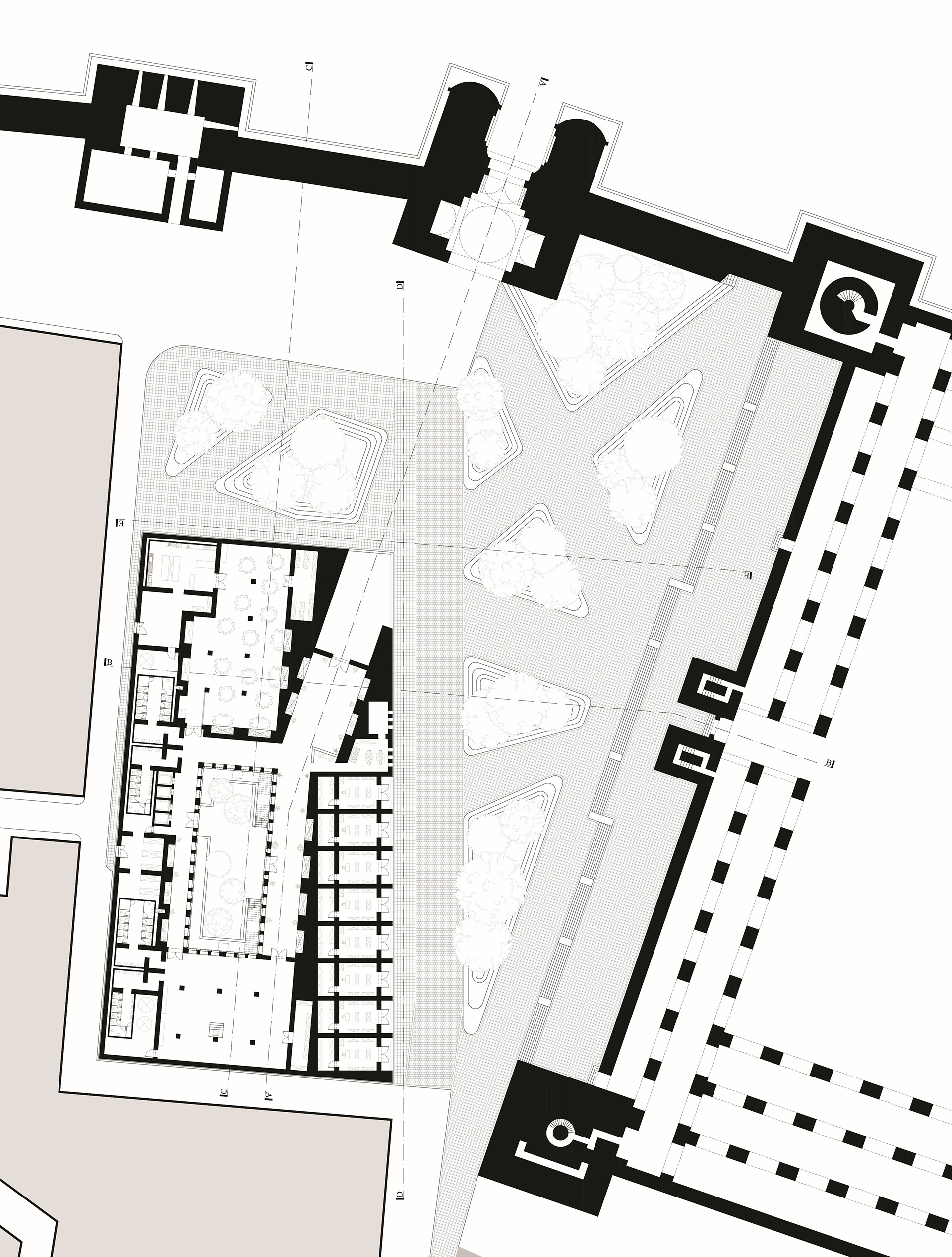
Le projet propose un hôtel pour les Bohras, musulmans chiites de l’Ouest de l’Inde rattachés spirituellement à la dynastie fatimide. Cette communauté se charge de l’entretien de nombreux bâtiments du Caire fatimide, qu’ils visitent régulièrement en pèlerinage. L'hôtel se situe en face de la mosquée El-Hakem, la plus importante pour eux, à l’aboutissement d’une rue marchande traversant la vieille ville, en lien direct avec la mosquée et le portail monumental Bab el-Futuh. Le projet offre ainsi un hébergement à une communauté discrète et introvertie dans un lieu historique fréquenté, tout en répondant à l’utilisation publique de la place.
L'utilisation de la pierre massive résonne avec la caractère historique du site, et offre une identité forte à l'hôtel. De plus, elle donne un sentiment de tranquillité et une distanciation de la rue marchande. La lumière naturelle des lieux communs est filtrée au moyen de moucharabiehs artisanaux en bois dans un dialogue subtil avec la minéralité du bâtiment.
Avec sa cour centrale et sa toiture-terrasse, toutes deux végétalisées, l'hôtel offre une multitude de lieux communs pour les pèlerins, qui voyagent en groupes et en famille. Il est ainsi à la fois un lieu d'accueil, de repos et de regroupement communautaire. Avec son implantation, il permet également l'aménagement de la place publique devant la mosquée, amenant une plus-value au site et bénéficiant aux utilisateurs de la rue marchande.
Collaboration : Hania Sharafeldin

Entrée dans Le Caire fatimide

Sortie de la mosquée

Espace d'accueil

Vue sur la cour intérieure

Vue depuis la terrasse

Rez

1er étage

4ème étage

Coupe transversale

Coupe longitudinale

Maquette 1:200, site

Maquette 1:20, détail de puits de lumière

Mock-up 1:1, détail de fenêtre

Voir aussi

Back to Top